
Entinen hämäläinen mahtitalo on edelleen kylän keskipiste
Mikkolan tilan historia ulottuu ainakin 1500-luvulle asti. Tilan omistajat tunnetaan vuodesta 1543 alkaen, jolloin Kustaa Vaasan tarmokkaat veronkerääjät alkoivat laatia luetteloita tiloista ja taloista kaukaisessa Luopioisten kappeliseurakunnassakin.
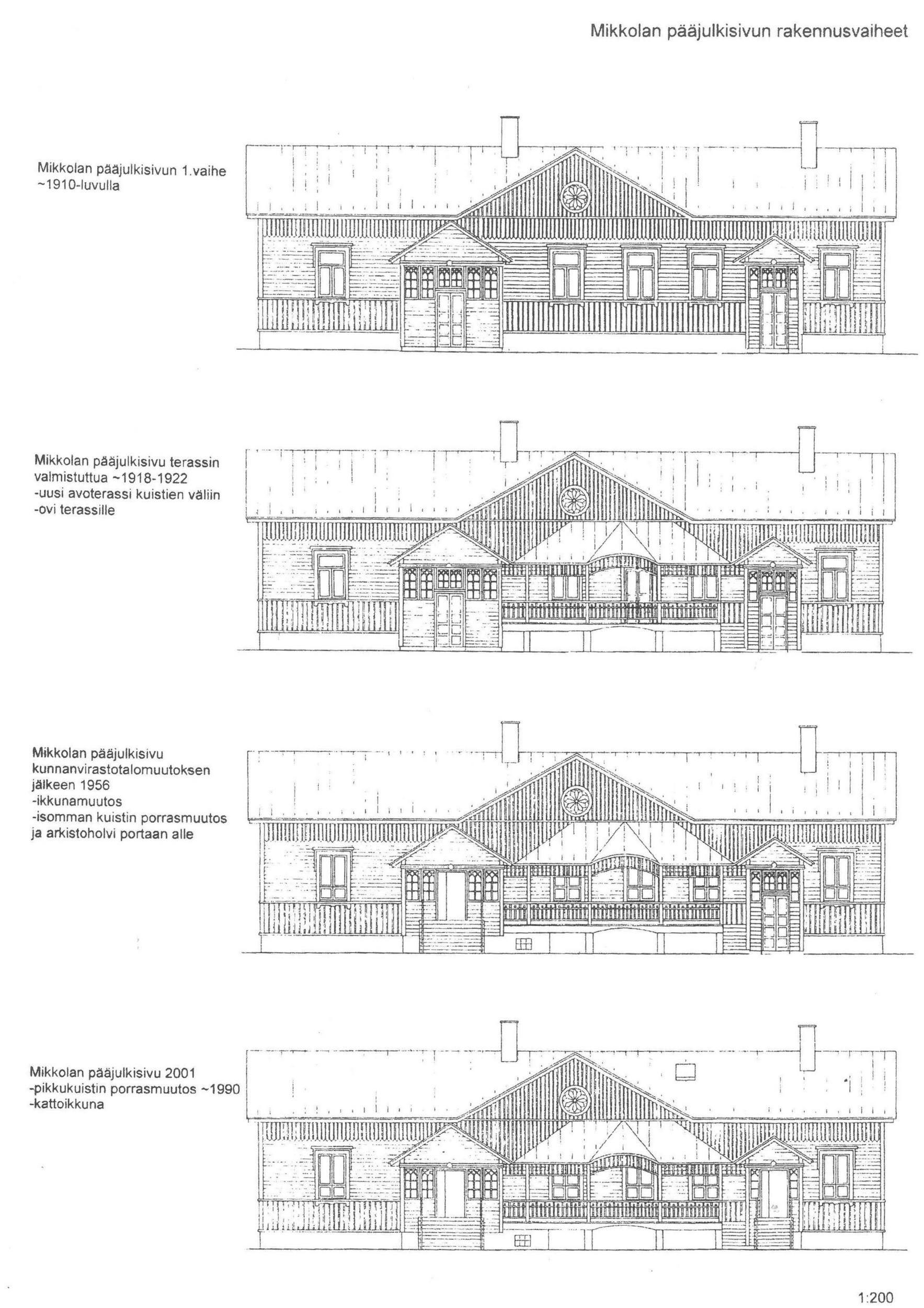
Vuonna 1922 tila myytiin Luopioisten kunnalle. Kunnan omistuksessa Mikkola jatkoi maanviljelystilana. Siellä viljeltiin ruista, kauraa, ohraa, perunaa, pellavaa, rehujuurikasveja, heinää ja vihantarehua ja pidettiin lypsykarjaa. Olipa Mikkolassa oma tiilitehdaskin. Mikkolan tilan nykyinen pääosin pystyhirsinen päärakennus on rakennettu 1800-luvun loppupuolella. Puurakentamisen nikkarityyliset ihanteet saivat näin Luopioisissa paikallisen talonpoikaisen tulkinnan. Päärakennuksen pohjoispuolella maantien varrella sijaitsee vuonna 1915 rakennettu tiilinen jyvämakasiini. Mikkolan päärakennus toimi kunnanlääkärin virka-asuntoja ja vastaanottotiloina vuodesta 1922 vuoteen 1955. Lisäksi rakennuksessa sijaitsivat myös kirjastotilat.
Muutostöiden valmistumisen jälkeen uusittuihin tiloihin muutti Luopioisten kunnanvirasto. Rakennukset ja pihapiiri edustavat vaurasta hämäläistä talonpoikaista rakennusperintöä ja rakennusryhmä on osa ympäristöministeriön vahvistamaa valtakunnallisesti merkittävää Luopioisten kirkonkylän kulttuurihistoriallista ja vanhaa raittiasutusta. Rakennus ja pihapiirikokonaisuus on luokiteltu myös Tampereen seutukaavaliiton 1990 inventoinnissa sekä rakennushistoriallisesti että miljööarvoltaan maakunnallisesti merkittäväksi kohteeksi.
Mikkolan sisääntulopiha on puistomainen ja vehreä. Maatilan aikaiset puut ovat enimmäkseen vaahteroita ja koivuja. Päärakennuksen eteläpuolella on aikoinaan ollut puutarha jossa on ollut mm. runsaasti omenapuita. Puutarhasta on jäljellä muutama omenapuu ja ruusupensas - sekä niitylle levinneet varjoliljat. Pihalle on myöhemmin istutettu jaloja lehti- ja havupuita. Puut on merkitty nimikylteillä arboretumin tapaan. Puistossa kasvaa mm. purppurakuusia, japaninpihtoja, douglaskuusia, visakoivuja, kynäjalavia ja tammia.


























